En els darrers dies han començat els treballs d’adequació del local que acollirà en el futur l’Arxiu Històric de Montornès
Les dependències estan situades als baixos del número 10 del carrer de la Pau, al mateix edifici on fa uns anys es va dur a terme una promoció d’habitatges amb protecció oficial.
El local que acollirà l’equipament, ubicat als baixos de l’edifici, és de titularitat municipal gràcies al conveni de col·laboració que van signar, al mes de desembre de 2005, l’Ajuntament i la cooperativa d’habitatges Llar Unió Catalònia SCCL per a la promoció d’habitatges protegits al municipi.
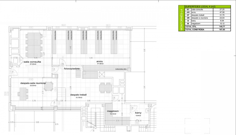
L’actuació de condicionament del local preveu la compartimentació en diversos àmbits de l’espai que té una superfície construïda de 167,6 m2.
L'Arxiu Històric disposarà d’una sala de consulta amb biblioteca auxiliar, d'un dipòsit d’arxivament, d'una sala de tractament de la documentació i d'un despatx amb sala de reunions.
Les obres tenen un pressupost de 66.446,31 euros, assumits per la cooperativa Llar Unió Catalònia que també és la responsable del desenvolupament del projecte.
Periòdicament rebràs un e-mail amb un resum del que es publica en aquest web.





